汐止區商辦法拍

法拍屋查詢,法拍屋流程,法拍屋代標

汐止區商辦法拍|新北市汐止區大同路一段239號15樓

新北市汐止區大同路一段239號15樓【台灣科學園區】6車位
列印
  • 售9000萬
    1. 案號:114實94575
    2. 類型:法拍商辦
    3. 總登記坪數:
    4. 每坪單價:
    5. 地址:新北市汐止區大同路一段239號15樓
    1. (煩請告知聯絡人,您是在House-Info房屋網看到廣告,感恩幫忙)
    2. 0980-758-080
    1. 市話:
    2. 公司名稱:
    3. 公司地址:
    新北市汐止區大同路一段239號15樓【台灣科學園區】6車位-QR CODE 我要留言 加LINE好友
物件介紹
詳細資料
銷售狀態
待標中
格局
0房
社區/大樓
台灣科學園區(德林建設)
屋齡
14年
所在樓層
15樓/共17樓
電梯
是否凶宅
不是
法拍屋
拍次
1
開標日期
115/04/22(三) 下午14:30
瀏覽人次
37人次
坪數說明
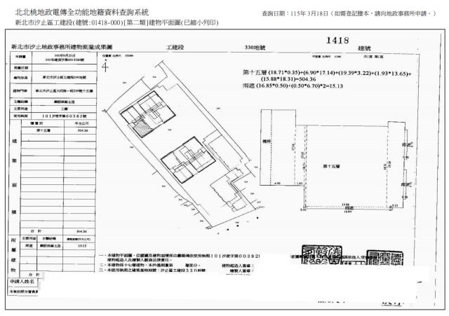
建物登記總坪數
289.56
主建物
289.56
公共設施
95.89
停車位
36.52
土地登記總坪數
50.42
特色描述
地址
新北市汐止區大同路一段239號15樓

公告內容
辦理法院|士林
案號|114實94575
拍賣時間|115/04/22(三) 下午14:30
拍次|1拍
點交否|點交

拍賣情況
拍賣中

產權資料
社區名|台灣科學園區
類型|大樓
樓層|15/17
屋齡|14
權狀坪|289.56
室內坪|157.15
公設坪|95.89
土地坪|50.42
增建坪|
車位|6
車位坪|36.52

拍賣資料
拍賣底價|9000萬元
保證金|1800萬元
單價/坪|31.1萬元
標別|

預估拍次
一拍價格|9000.0萬元|26.5萬/坪
預估二拍|7200.0萬元|21.2萬/坪
預估三拍|5760.0萬元|17.0萬/坪
預估應買|5760.0萬元|17.0萬/坪
預估四拍|4608.0萬元|13.6萬/坪

法院筆錄
1‧1418建號拍定後點交。
2‧民國114年12月4日現場查封時,第三人即實質債務人立治科技股份有限公司之員工淩○惠在場,稱房屋部分出租星隼光學股份有限公司,部分放置立治科技股份有限公司及藍摩半導體股份有限公司之物品;第三人即星隼光學股份有限公司員工張○如在場稱係114年7月遷入,嗣陳報自114年6月1日起承租,惟所提出之租賃契約記載租賃期間係自114年12月1日起至117年5月31日止。另配賦之停車位編號285、286、287、299、300、301位於地下1樓,債務人陳報均已出租予第三人劉○世,租賃期間自114年10月1日至117年5月31日,並提出租賃契約為證。因上開租賃契約均係訂立於本件114年9月25日查封之後,不得對抗債權人,故建物拍定後點交。惟現在實際情形如何,仍請應買人自行查明注意。
3‧投標人應自行查明債務人有無積欠管理費,並注意拍定後民法第826條之1第3項規定之適用問題。
《拍賣抵押物》




法拍代標專家 TORO|18 年法拍屋經驗,專業代標、合法透明、成功率高
專欄人物-黃瑋諭
在法拍市場中,資訊不對稱、法律風險、投標策略失誤,往往讓投資人錯失良機,甚至承擔不必要的風險。
選擇一位真正專精法拍屋的代標專家,是成功關鍵。
TORO 法拍代標|業界口碑第一的法拍屋專家
📮TORO(黃瑋諭),深耕法拍屋市場 超過 18 年,專注於法拍交易、法拍屋投資與代標服務,累積豐富實戰經驗,並以「合法、透明、專業」著稱。
TOROESTATE 創辦人
法拍屋教學教育資深講師👨‍🏫
多家媒體、網路專欄不動產分析專家📢
曾參與多件大型企業辦公室、豪宅、廠房之法拍代標案件🏢
不只協助投標,更替客戶控管風險,打造長期穩定的法拍投資策略👑
法拍代標實績|累積成交金額突破 50 億
法拍成交案件數:300+ 件
累積成交總金額:超過 50 億元
102 年單店成交金額:17 億
111 年單店成交金額:30 億
👉 業績來自實力,口碑來自成果。
為什麼選擇 TORO 法拍代標?
專業法律顧問全程把關
配合專業律師團隊確保交易合法、安全降低潛在法律風險
法拍物件完整調查
產權結構、登記風險全面審查使用狀況、占用與點交可能性分析避免「買到不能住、不能用的法拍屋」
客製化投標策略
投標價格精準分析市場行情比對依現場狀況即時調整投標金額
TORO 法拍代標完整流程
委託前諮詢
法拍流程完整說明
成本、稅費、銀行貸款分析
投資風險與報酬評估
委託後分析
預估得標價格
銀行鑑價與融資可行性
現場實地調查
投標當日
全程陪同或代理投標
現場觀察投標人數
即時判斷投標策略
成功得標後
銀行撥款與法院流程協助
點交程序與文件處理
協助排除占用、後續出租或轉售規劃
法拍代標收費方式(透明公開)
⭕️點交法拍屋:3%
⭕️不點交法拍屋:5%
❌️未得標:完全不收費
👉 成功才收費,與客戶站在同一陣線。
投標當日必備文件
⭐️投標人身分證公司投標需附法人登記資料
⭐️投標人印章/法人大小章
⭐️投標保證金(拍賣底價 20%)

台北/新北法拍投標地點與電話
台北地方法院
台北市博愛路 131 號
📞 (02) 2314-6871
新北地方法院
新北市土城區青雲路 152 號 6 樓
📞 (02) 2261-6714
士林地方法院
台北市內湖區民權東路六段 91 號
📞 (02) 2791-1521
台灣金服公司
台北市大安區忠孝東路四段 300 號 10 樓
📞 (02) 8771-1168
聯絡 TORO|法拍代標諮詢專線
⭐️ 0980-758-080
👉 一對一諮詢,協助你避開法拍陷阱,精準得標。

 
汐止法拍商辦-0
汐止法拍商辦-0
汐止法拍商辦-1
汐止法拍商辦-1
物件留言
請注意,如果您詢問的內容與物件不相符合或是廣告,經過審核,系統將會直接刪除您的發問內容
等待圖示
免責聲明:House-Info房屋網平台系統為租用式開放房屋買賣網站建置平台,僅提供會員查詢-新北市,汐止區,商辦-等房屋資訊參考,並不涉入任何諮詢、交易。 物件(服務)聯絡人公佈的資訊、文字、照片、圖形、產權、廣告內容、或其他資料若有不實或違法情事,或與客戶聯絡交易過程中若衍生民事或刑事等法律問題,皆與House-Info房屋網站無關,所有商標、文章、名稱等版權,皆歸屬原著作者所有!